© HM52 workshop srl - P.I. 03008270245

La realizzazione di blocchi camera modulari per il settore alberghiero non è una novità, esistono molti esempi di edifici realizzati soprattutto in concomitanza con manifestazioni sportive internazionali con la tecnologia delle "scatole prefabbricate".
HM52-Abitazioni ecologiche sulla scorta della esperienza maturata in più di venti anni di costruzioni prefabbricate in legno e/o acciaio ha sviluppato un programma modulare per il settore alberghiero che tiene conto delle tipicità, dei vincoli di varia natura e delle normative italiane.
Le strutture X-BOX HOTEL sono composte da moduli trasportabili prefabbricati per la quasi totalità in azienda ergo tempi certi e costi fissi garantiti.

COMBINAZIONI X-BOX HOTEL
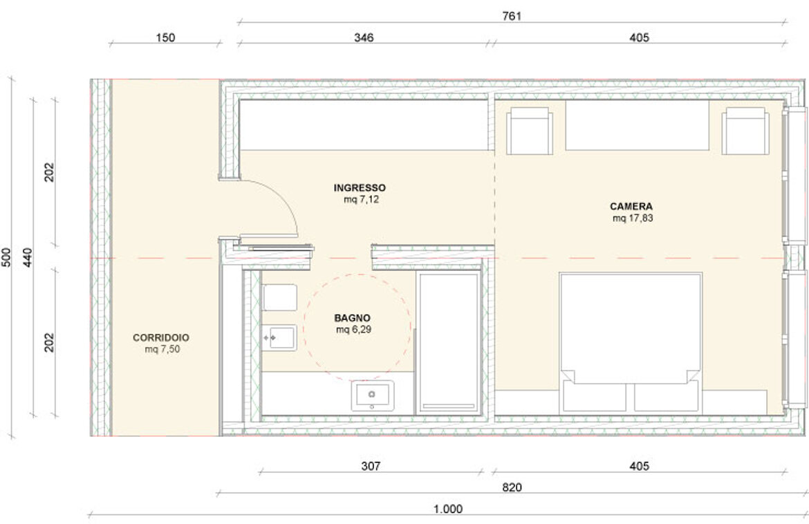
Grazie alla modularità della "scatola base" le combinazioni realizzabili sono pressoché infinite e modulabili sulle singole specifiche esigenze dell'imprenditore alberghiero.
Gli interventi di costruzione possono essere a bassissimo impatto ambientale (anche con caratteristiche di temporaneità) grazie all'uso di geopali, che mantenendo sollevati i moduli rispetto al piano di campagna, non richiedono opere di fondazione in cemento armato oppure possono essere realizzati interventi più tradizionali sia ad un piano oppure a più piani, sia seguendo l'orografia del luogo.





Tutti gli interventi X-BOX HOTEL sono realizzati con tempistiche certe e prezzi fissi e garantiti.
Installiamo ogni quindici giorni lavorativi fino a un massimo di 10 moduli prefabbricati completi di impiantistica e arredamento. I tempi di costruzione sono variabili in base al tipo di combinazione dei moduli.
I prezzi di fornitura e installazione sono determinati in base al livello tecnologico-impiantistico, delle finiture e della tipologia di intervento.
Per avere info a riguardo potete contattare Pietro Spampatti via Whatsapp
Per ogni intervento X-BOX HOTEL, partendo da un rilevo strumentale planoaltimetrico, sviluppiamo uno Studio di Fattibilità composto da piante, prospetti, sezioni, viste tridimensionali e computo metrico dettagliato.
Tutti gli Studi Fattibilità sono redatti tenendo conto della normativa Comunale, Provinciale e Regionale in vigore sul lotto di pertinenza nella quale i moduli saranno installati.
Lo Studio di Fattibilità è la base progettuale necessaria per poter procedere con i lavori di costruzione una volta ottenuto il Permesso a Costruire ma soprattutto permette di pianificare l'intervento di nuovo impianto o di espansione ricettiva con controllo certo dei tempi e dei costi.
Per avere info sui costi dello studio di fattibilità potete contattare Pietro Spampatti via Whatsapp
© HM52 workshop srl - P.I. 03008270245